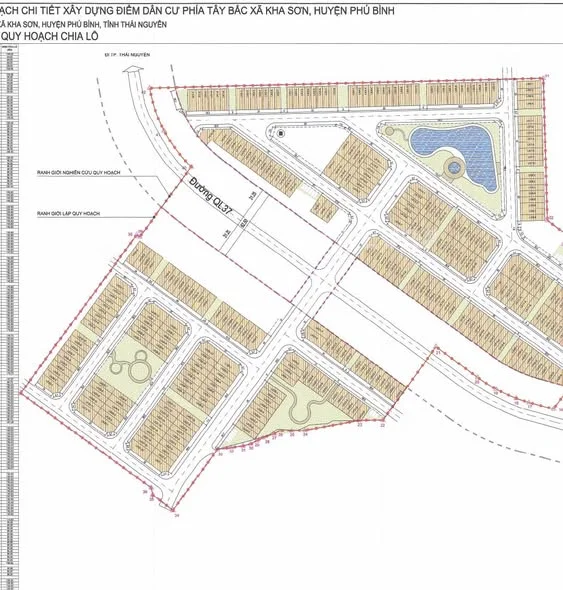
Ra mắt Kha Sơn Green City ngay tại Khu công nghiệp Phú Bình Thái Nguyên quốc lộ 37, pháp lý sổ đỏ

Kha Sơn Green City, Xã Kha Sơn, Thái Nguyên

Giá tiền

Thỏa thuận

Diện tích

80 m²

Loại BĐS

Đất

Mã tin #95

Thông tin mô tả

Ra mắt Kha Sơn Green City ngay tại Khu công nghiệp Phú Bình Thái Nguyên quốc lộ 37, pháp lý sổ đỏ sở hữu lâu dài từng lô. Liên hệ em để nhận báo giá chi tiết từng lô

Tổng quan

Quy mô: 9,15 ha

Tổng sản phẩm: 344 lô

Nhà ở liền kề: 294 lô

Shophouse thương mại: 50 lô

Pháp lý: Đất ở lâu dài sổ đỏ từng lô

Thiết kế: Hiện đại chuẩn Eco Living

KHÔNG GIAN SỐNG XANH TIỆN ÍCH KHÁC BIỆT

Hồ điều hòa trung tâm công viên sinh thái

Công viên Green Park khu vui chơi quảng trường

Công viên thể thao, sân Pickleball thời thượng

Hệ thống đường nội khu đã trải nhựa, cây xanh theo chủ đề

Hạ tầng chiếu sáng thông minh kết hợp điện lưới & năng lượng mặt trời

SHOPHOUSE THIẾT KẾ 2 TẦNG 1 TUM TỐI ƯU KINH DOANH

Tầng 1: Kinh doanh độc lập nhận diện cao

Tầng 2: Sinh hoạt riêng tư

Tum đa công năng: làm việc sân thư giãn

Phù hợp: café, spa, cửa hàng, văn phòng, cho thuê dòng tiền

Anh/Chị quan tâm liên hệ 0983007***

Phòng kinh doanh Chủ đầu tư

Liên hệ ngay để biết thêm chi tiết về bất động sản này! Linh Vương [[ contactPhone ]] 0983 007 ***

Đặc điểm bất động sản

Diện tích

80 m²

Loại BĐS

Đất

Vị trí & tiện ích xung quanh

Khám phá tiện ích trong bán kính 2 km

  • [[ selectedMapOption?.icon ]]
    [[ it.name || '' ]]

    [[ it.address ]]

    [[ formatDistance(it.distance_m) ]]
[[ selectedMapOption?.icon ]] Đang tải dữ liệu…
[[ selectedMapOption?.icon ]] Không tìm thấy [[ selectedMapOption?.name.toLowerCase() ]] gần đây.
Ảnh đại diện
Linh Vương

1 tin đăng

Tham gia: 2 tháng trước
Xác thực: Đã xác minh

Tìm kiếm theo từ khóa

Bài viết liên quan

Tỉnh Thái Nguyên trước sáp nhập
Bản đồ tỉnh Thái Nguyên mới
Thành phố Thái Nguyên trước sáp nhập
Huyện Phú Bình, Thái Nguyên trước sáp nhập
Bản đồ xã Kha Sơn, Thái Nguyên sau sáp nhập
Bản đồ xã Chợ Đồn, tỉnh Thái Nguyên sau sáp nhập
Bản đồ xã Lương Phú, Vĩnh Long sau sáp nhập
Bản đồ xã Yên Thổ, Cao Bằng sau sáp nhập
Avatar

[[ isMessage ? 'Nhắn tin với chủ nhà' : 'Liên hệ chủ nhà' ]]

[[ isMessage ? 'Gửi lời nhắn tới chủ nhà' : 'Để lại thông tin liên hệ của bạn' ]]

Avatar người dùng
Linh Vương
Đã xác minh

[[ contactErrors?.phone[0] ]]

[[ contactErrors?.name[0] ]]

[[ contactErrors.general ]]

✔️ Gửi thành công! Chúng tôi sẽ liên hệ bạn sớm nhất.