Khu đô thị Đình Trám Sen Hồ

68 đường Quốc lộ 37, Phường Việt Yên, Tỉnh Bắc Ninh

Bất động sản tại Khu đô thị Đình Trám Sen Hồ

Chưa có bất động sản nào

Bạn hãy thử thay đổi bộ lọc hoặc quay lại sau.

Tổng quan Khu đô thị Đình Trám Sen Hồ

Khu đô thị Đình Trám Sen Hồ là dự án thuộc định hướng phát triển của tỉnh Bắc Giang, được triển khai với mục đích góp phần thúc đẩy phát triển kinh tế, văn hóa, đem đến cuộc sống tiện nghi, hiện đại cho người dân khu vực.

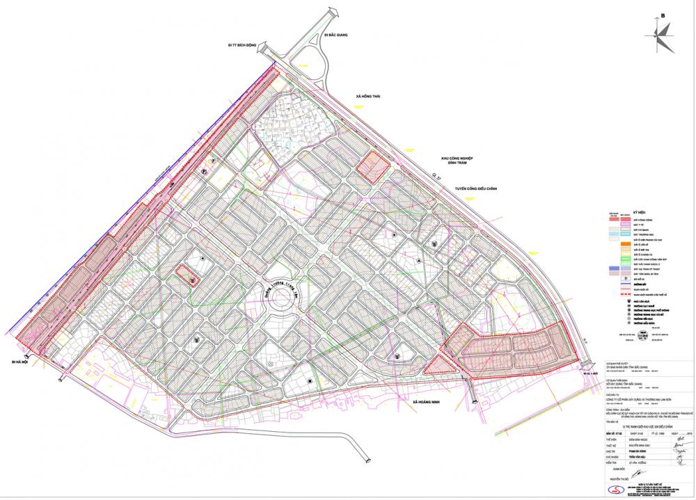
Dự án do Công ty CP XD&TM Lam Sơn làm chủ đầu tư với quy mô khoảng 121,96ha, tọa lạc trên địa bàn 2 xã Hoàng Ninh và Hồng Thái, huyện Việt Yên, tỉnh Bắc Giang.

Được biết, tổng vốn đầu tư cho KĐT Đình Trám Sen Hồ vào khoảng khoảng 1.283,7 tỷ đồng. Dự án được quy hoạch bài bản gồm các chức năng khu ở, dịch vụ thương mại, công trình công cộng, văn hóa, công viên vui chơi giải trí. Trong đó, diện tích nền biệt thự dao động trong khoảng 200 - 250m2/lô, nhà chung cư từ 75 - 100m2/căn và đất nhà ở liền kề từ 75 - 85m2/nền.

img-1775292656-1
Phối cảnh Khu B dự án KĐT Đình Trám Sen Hồ

Hạ Tầng - Quy Hoạch

Với quy hoạch tổng thể 121,96ha, Khu đô thị Đình Trám Sen Hồ dành khoảng 112ha cho xây dựng nhà ở và khoảng 9,9ha đất phục vụ đấu nối hạ tầng cho khu hiện trạng, xây dựng cơ sở hạ tầng đô thị tân tiến, hiện đại phục vụ cư dân.

Vị Trí

KĐT Đình Trám Sen Hồ toạc lạc ngay mặt đường Quốc lộ 37, thuộc địa phận xã Hồng Thái và xã Hoàng Ninh, huyện Việt Yên, tỉnh Bắc Giang.

img-1775292656-2
Vị trí dự án
Giá hiển thị 16,87 - 35,56 triệu/m²
Tổng diện tích 121.96 ha

Tiện ích nội khu

Vị trí dự án

  • [[ selectedMapOption?.icon ]]
    [[ it.name || '' ]]

    [[ it.address ]]

    [[ formatDistance(it.distance_m) ]]
[[ selectedMapOption?.icon ]] Đang tải dữ liệu…
[[ selectedMapOption?.icon ]] Không tìm thấy [[ selectedMapOption?.name.toLowerCase() ]] gần đây.

Tư vấn miễn phí

24/7

Để lại thông tin liên hệ, chuyên gia của Ever sẽ tư vấn và hỗ trợ bạn trong vòng 15 phút.

🔒 Thông tin của bạn được bảo mật tuyệt đối