Chung cư Hoàng Thịnh Phát

Phường Vinh Hưng, Tỉnh Nghệ An

Bất động sản tại Chung cư Hoàng Thịnh Phát

Chưa có bất động sản nào

Bạn hãy thử thay đổi bộ lọc hoặc quay lại sau.

Tổng quan Chung cư Hoàng Thịnh Phát

Chung cư Hoàng Thịnh Phát là dự án Công trình nhà thương mại dịch vụ kỹ thuật tổng hợp và văn phòng cho thuê kết hợp nhà ở chung cư được đầu tư bởi Công ty CPDT Hoàng Thịnh Phát tại TP. Vinh, tỉnh Nghệ An. Với quy mô gồm 11 tầng nổi, 1 tầng hầm và 1 tầng thương mại, dự án sau khi hoàn thiện sẽ cung ứng cho thị trường khu vực 121 căn hộ bàn giao tiêu chuẩn, nội thất liền tường, đáp ứng nhu cầu an cư cho cư dân tại thành Vinh, đặc biệt là các gia đình trẻ.

img-1775249870-1
Phối cảnh tổng thể dự án Chung cư Hoàng Thịnh Phát

Vị Trí

Chung cư Hoàng Thịnh Phát toạ lạc tại số 5 đường Nguyễn Trãi, phường Quán Bàu, TP. Vinh, tỉnh Nghệ An. Vị trí dự án được đánh giá là đắc địa khi nằm ngay khu vực ngã ba Quán Bàu thuộc trung tâm thành phố Vinh, gần kề đường 72m và có kết nối thuận tiện đến khu vực, tiện ích kế cận, phù hợp cho cả mục đích an cư kết hợp đầu tư cho thuê.

img-1775249870-2
Vị trí Chung cư Hoàng Thịnh Phát

Giá Bán

Xem tin đăng và giá bán căn hộ Chung cư Hoàng Thịnh Phát cập nhật mới nhất trên Batdongsan.com.vn: Giá bán Rumor của căn hộ tại dự án vào khoảng 20,5 triệu đồng/m2

Tiện Ích

Những lợi thế về mặt vị trí đem đến cho dự án Chung cư Hoàng Thịnh Phát khả năng kết nối vùng hoàn hảo khi từ đây, cư dân có thể di chuyển đến các tiện ích hiện hữu của thành phố một cách thuận lợi:

  • 500m đến trường tiểu học Quán Bàu
  • Gần kề Trung tâm thương mại ECO
  • 800m đến chợ Quán Bàu
  • 1km đến trường THCS Quán Bàu
  • 1.5km đến Bệnh Viện Ban Lan, ga Vinh
  • 3km đến TTTM Lotte
  • 3.5km đến Quảng trường Hồ Chí Minh

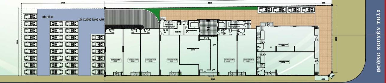
Mặt Bằng - Thiết Kế

Với mật độ xây dựng thấp, Chung cư Hoàng Thịnh Phát đem đến không gian sống thoáng đãng, tiện nghi cho cư dân khi mỗi tầng chỉ có 11 căn hộ.

  • Tầng 1 shop kinh doanh
  • Tầng 2-11 là căn hộ ở
  • 2 thang máy, 2 thang bộ thoát hiểm tiêu chuẩn quốc tế
  • Diện tích căn hộ đa dạng: 61 - 77 - 70 - 69 - 65 - 67 - 80 - 79m2/căn
  • Tiêu chuẩn bàn giao: Trần thạch cao, thiết bị vệ sinh cao cấp, tủ bếp, điều hòa, cửa khóa từ vân tay...
img-1775249870-3
Mặt bằng tầng 2 Chung cư Hoàng Thịnh Phát
img-1775249870-4
Mặt bằng tầng điển hình Chung cư Hoàng Thịnh Phát
img-1775249870-5
Phối cảnh phòng khách căn hộ Chung cư Hoàng Thịnh Phát
img-1775249870-6
Phối cảnh phòng khách căn hộ Chung cư Hoàng Thịnh Phát

Tiến Độ

Dự án Chung cư Hoàng Thịnh Phát sẽ ra mắt trong tháng 7/2024 và dự kiến bàn giao trong Quý 2/2025.

Giá hiển thị 27,16 - 33,8 triệu/m²
Quy mô 11 tầng, 121 căn hộ

Tiện ích nội khu

Thang máy
Thang máy
Bãi đỗ xe

Vị trí dự án

  • [[ selectedMapOption?.icon ]]
    [[ it.name || '' ]]

    [[ it.address ]]

    [[ formatDistance(it.distance_m) ]]
[[ selectedMapOption?.icon ]] Đang tải dữ liệu…
[[ selectedMapOption?.icon ]] Không tìm thấy [[ selectedMapOption?.name.toLowerCase() ]] gần đây.

Tư vấn miễn phí

24/7

Để lại thông tin liên hệ, chuyên gia của Ever sẽ tư vấn và hỗ trợ bạn trong vòng 15 phút.

🔒 Thông tin của bạn được bảo mật tuyệt đối