Căn hộ Linh Tây

Phường Linh Xuân, Thành phố Hồ Chí Minh

Bất động sản tại Căn hộ Linh Tây

Chưa có bất động sản nào

Bạn hãy thử thay đổi bộ lọc hoặc quay lại sau.

Tổng quan Căn hộ Linh Tây

Tổng quan

Thông tin tổng quan Căn hộ Linh Tây

Căn hộ Linh Tây nằm ngay trên đường Đào Trinh Nhất, phường Linh Tây, quận Thủ Đức, TP.HCM. Từ vị trí dự án,cư dân có thể đi đến trung tâm Tp.HCM cũng như khu vực lớn rất thuận lợi và dễ dàng.

- Diện tích khuôn viên đất: 8.000 m2
- Diện tích xây dựng: 3.528 m2
- Tổng DT sàn xây dựng: 46.422m2
- Mật độ xây dựng khối đế: 44,1 %
- Mật độ xây dựng khối tháp: 30,0 %
- Số block: 02 block
- Số tầng: 18 tầng
- Tầng trệt đến tầng 1: Căn hộ ở, DV TM và VP
- Hồ bơi: 600 m2
- Tổng số căn hộ: 649 cănhộ
- Dân số dự kiến: 1.384 người

img-1775294985-1
Phối cảnh tổng thể Căn hộ Linh Tây


Hạ tầng - Quy hoạch

Tiện ích

Căn hộ Linh Tây đảm bảo đầy đủ các tiện ích hiện đại phục vụ đời sống cư dân:

- Trung tâm thương mại, hồ bơi, phòng tập Gym, Spa, Lotteria, KFC…

- An ninh bảo vệ 24/24

img-1775294985-2
Những tiện ích căn hộ

img-1775294985-3
Tiện ích ngoại khu

img-1775294985-4
Mặt bằng dự án


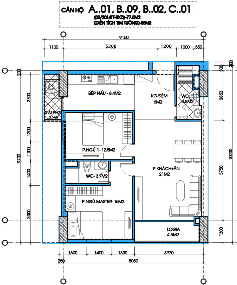
Thiết kế - Mẫu nhà

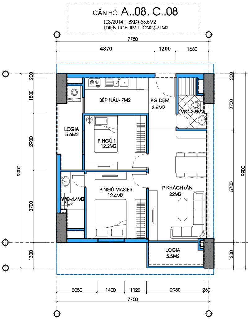
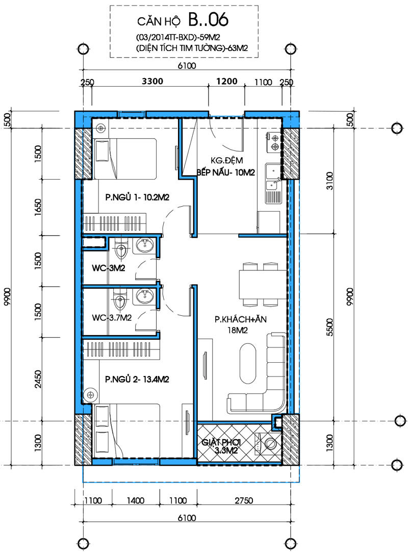
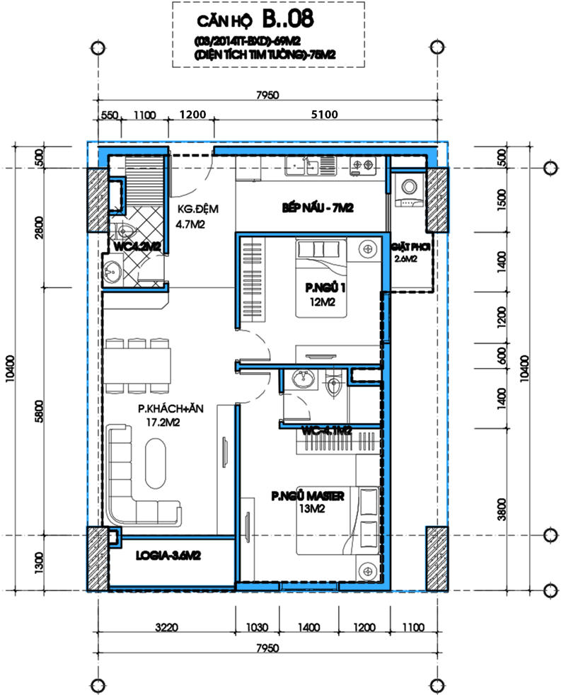
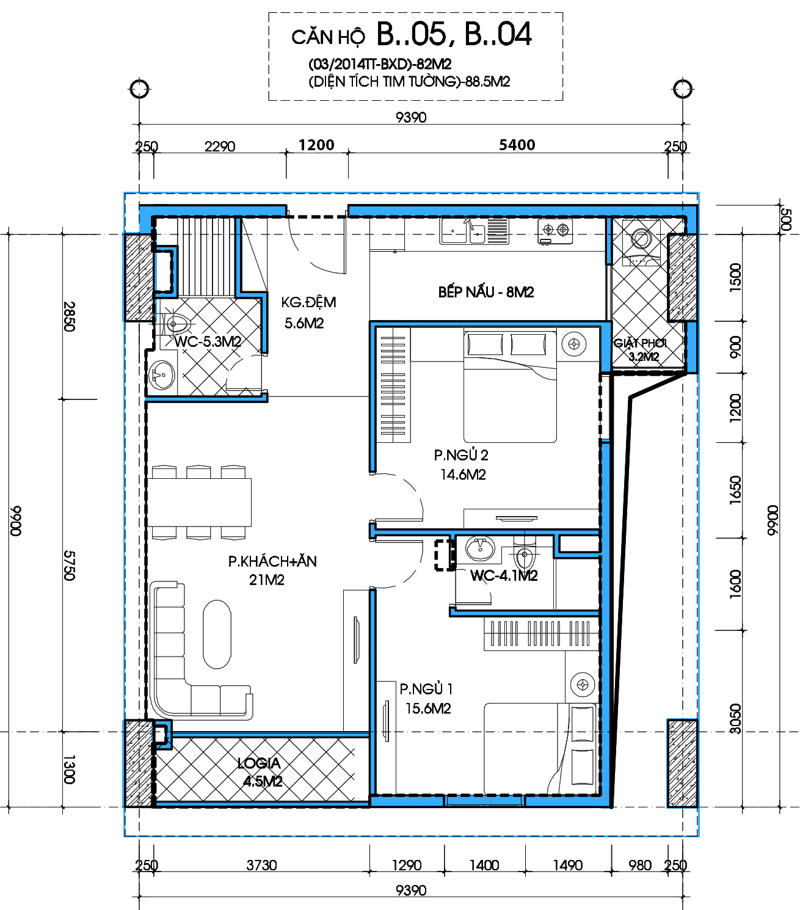
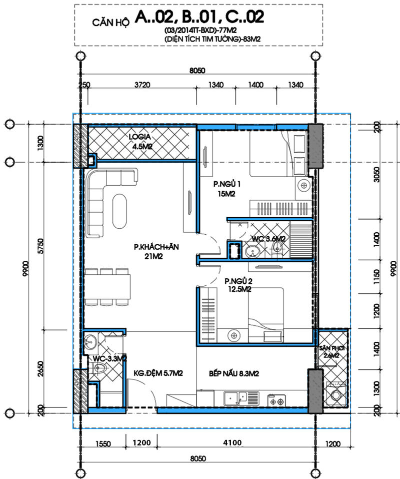
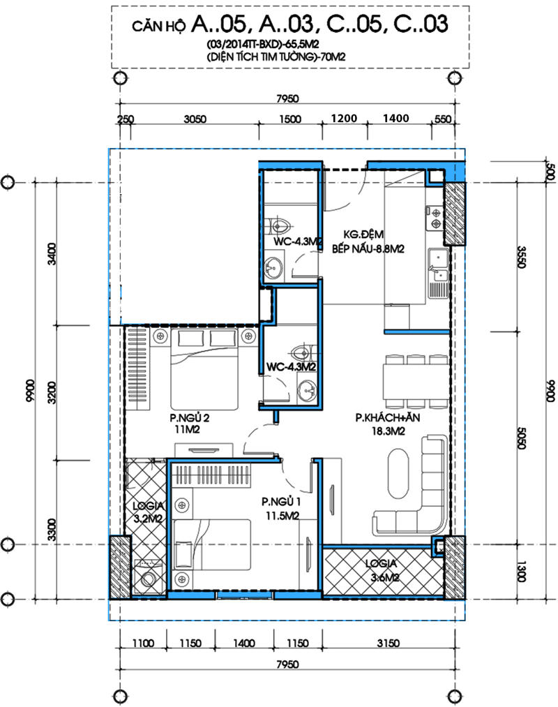
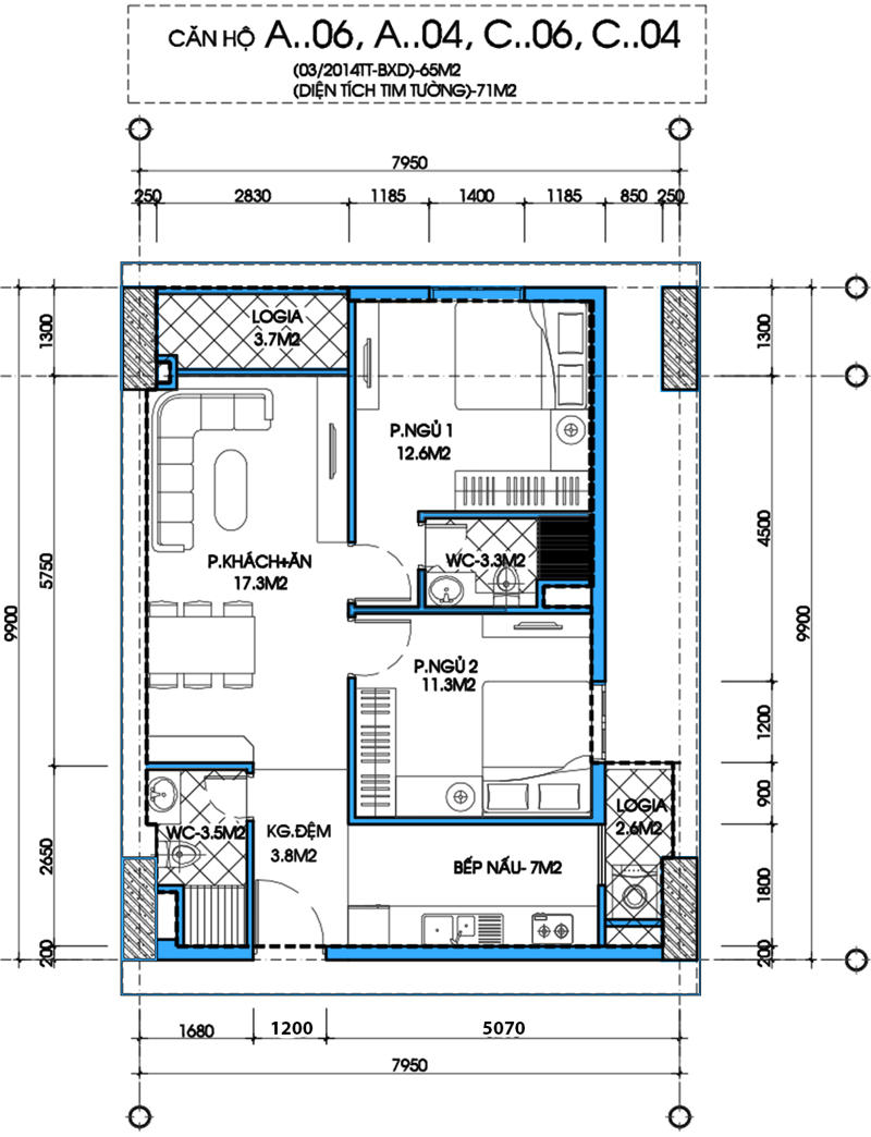
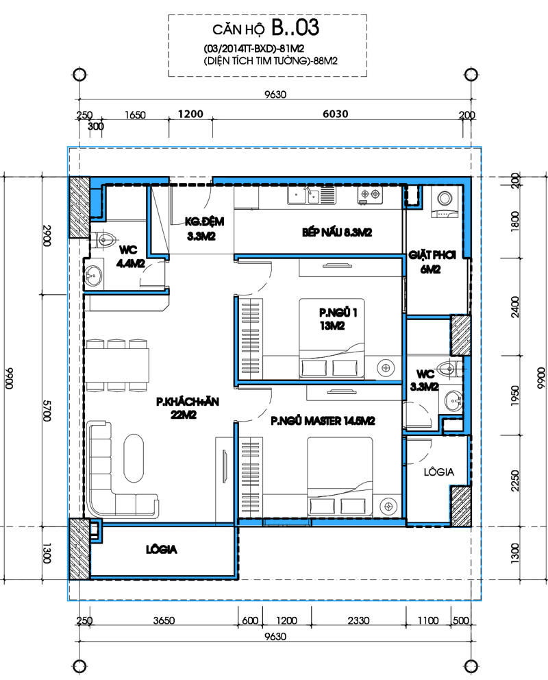
Căn hộ Linh Tây thiết kế từ 45m2 – 70m2 từ 1 phòng ngủ đến 3 phòng ngủ đáp ứng đa dạng cho đa nhu cầu của khách hàng.

img-1775294985-5

img-1775294985-6

img-1775294985-7

img-1775294985-8


Vị trí

Căn hộ Linh Tây nằm ngay trên đường Đào Trinh Nhất, phường Linh Tây, quận Thủ Đức, TP.HCM.

- Cách Bình Lợi – Tân Sơn Nhất 200m (khoảng 2 phút đi bộ)
- Về Gò Vấp – CôngViên Gia Định chỉ 15p
- Liền kề mặt tiền đường Kha Vạn Cân, 3 phút đến chợ Thủ Đức, 12 phút đến sân bay Tân Sơn Nhất, 15 phút đến vòng xoay hàng xanh, 25 phút đến chợ Bến Thành, 5 phút đến Co.op mart quận 9, 3 phút đến bệnh viện đa khoa Thủ Đức, 7 phút đến khu du lịch Suối Tiên…

img-1775294985-9
Vị trí dự án


Hình ảnh

img-1775294985-10

img-1775294985-11

img-1775294985-12

img-1775294985-13

img-1775294985-14

img-1775294985-15


Tiến độ

Hiện trạng: Xong móng và hầm, và chuẩn bị lên tầng 1.


Hỗ trợ tài chính

img-1775294985-16


Giá hiển thị 27,12 - 40,93 triệu/m²
Tổng diện tích 4.64 ha
Quy mô 02 block 18 tầng

Tiện ích nội khu

Vị trí dự án

  • [[ selectedMapOption?.icon ]]
    [[ it.name || '' ]]

    [[ it.address ]]

    [[ formatDistance(it.distance_m) ]]
[[ selectedMapOption?.icon ]] Đang tải dữ liệu…
[[ selectedMapOption?.icon ]] Không tìm thấy [[ selectedMapOption?.name.toLowerCase() ]] gần đây.

Tư vấn miễn phí

24/7

Để lại thông tin liên hệ, chuyên gia của Ever sẽ tư vấn và hỗ trợ bạn trong vòng 15 phút.

🔒 Thông tin của bạn được bảo mật tuyệt đối